1 / 5



| Main Technical Data | |
|---|---|
| Start type | Direct on line |
| Qty of controlled pump | Duplex pump |
| Rated input voltage | AC380V/AC400V Three Phase 50HZ/ 60HZ |
| Rated output power | 0.75kw-15kw (1hp-20hp) |
| Protection functions | Over load, Pump stalled, Dry run (sensor free), Under/Over voltage, Repeat start, Three phase unbalance, Phase reversal, Open phase protection |
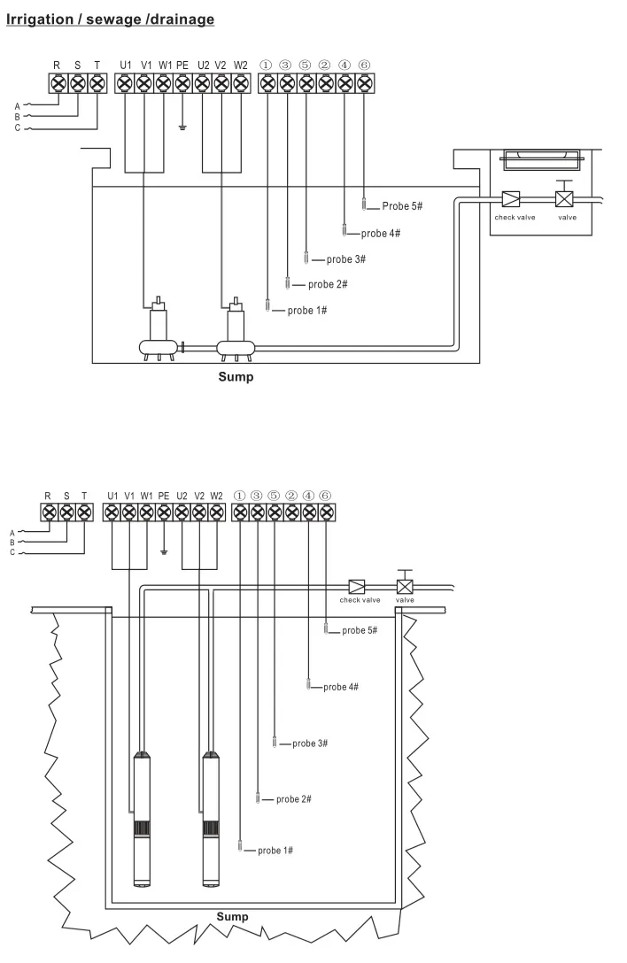
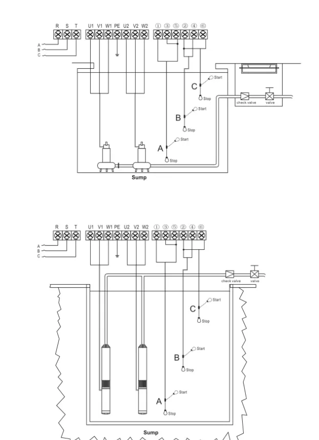
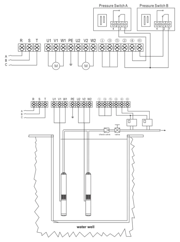
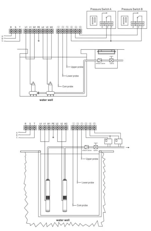
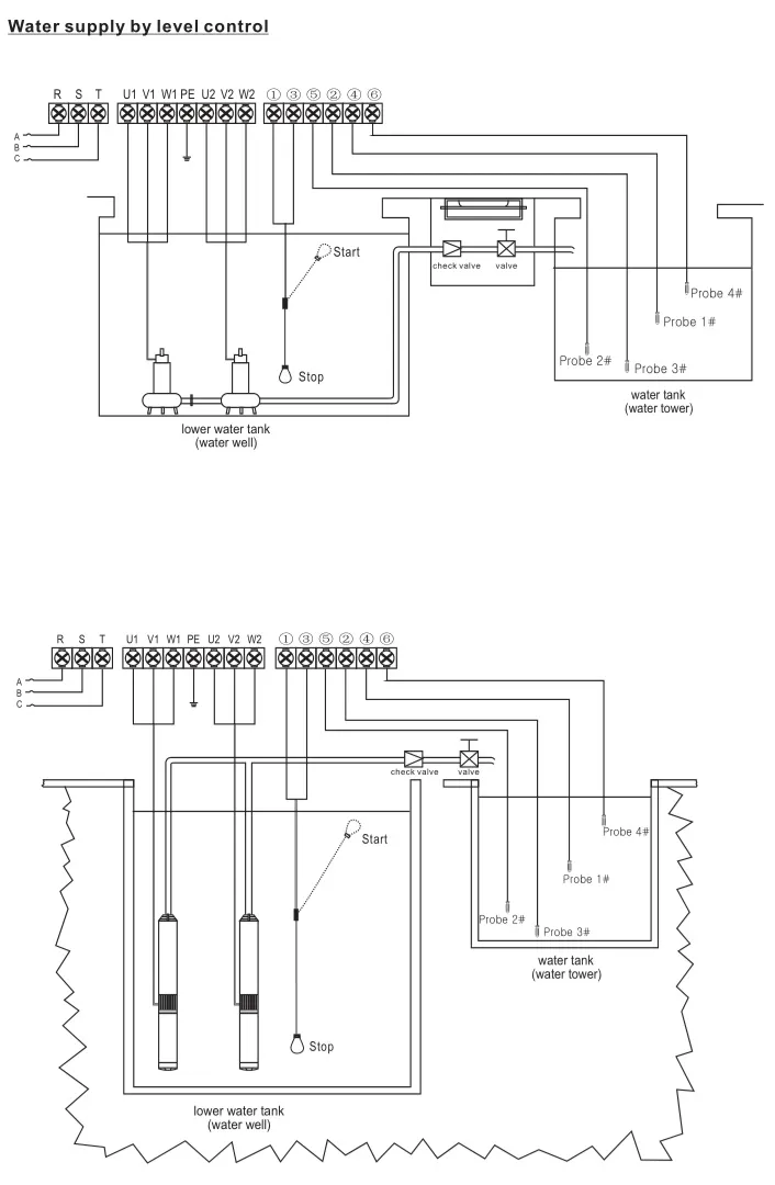
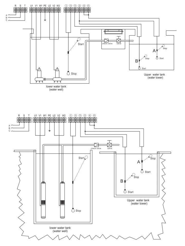
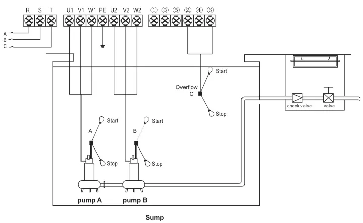
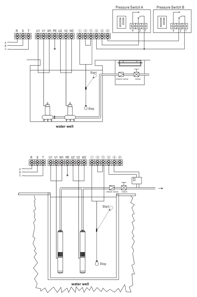
| Control characteristic | Water level sensor, float switch or pressure switch control; Main/standby pump auto alternate & switch against malfunction |
| Other features | Last five faults record, cumulative running time, RS485 port, LCD screen lock, remote monitor support |
| IP Rating / Installation | IP54 / Wall mounting |











